MD076 – Látogatóközpont

Az AXIS Építésziroda Kft. felkért minket, hogy a Mádra tervezett gasztronómiai és látogatóközpontot a vázlattervi szakasztól kezdve kooperációban dolgozzuk ki.

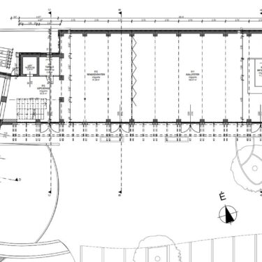
A telek északi oldalhatárán egy volt települési tűzoltó szertár áll, az új épület ennek déli és nyugati irányú bővítésével jön létre. A tűzoltó szertár első részében, a keleti oldalon kapott helyet egy kis kávézó, ahova a központ látogatása nélkül is be lehet ülni, ezen kívül egy előtér és a mosdóblokk. Az emeleten az iroda és gépészeti helyiségek lettek kialakítva.

A régi tűzoltó szertár mögé egy hatalmas kiállítótér, valamint rendezvénytér került kialakításra, mely akár az udvarról is megközelíthető. Az emeleten egy kisebb étkező, kóstolóterem található, mely a belső lépcsőházon keresztül közelíthető meg. Ehhez a tömbhöz a lépcsőházon keresztül kapcsolódik egy keresztszárny, ahol egy kiszolgálóterület lett kialakítva mosdóblokkal és egy főzőkonyhával, míg az emeleten egy nagy előadótér nyújt helyszínt különféle konferenciáknak, továbbképzéseknek.

Az eredeti épületet déli irányban egy új fedett-nyitott térrel bővítették ki, amely épített kerítéssel zárja a térfalat a telekhatár további részén. Ez alatt rossz idő esetén is helyet lehet foglalni.

Az így kialakult U alakban épületekkel határolt hatalmas belső udvar alkalmas mindenféle szabadtéri rendezvényre.

A tervezés fontos része az anyagok pontos meghatározása, mely egyedi arcot kölcsönöz a háznak és a területre jellemző hangulatot képviseli. A vakolt felületek mellett megjelenik a kő és a fehér téglaburkolat, ami a tető natúr színű fedésével jön egyensúlyba.

  • Tervező Erhardt Gábor, Kokrehel Anna
  • Tervezés éve 2020
  • Alapterület 865 m2
  • Megrendelő Axis Építésziroda
  • Helyszín Mád
  • Funkció Látogatóközpont