DD112 – Családi ház

Az a megtiszteltetés ért bennünket, hogy egy házaspár minket bízott meg családi házuk építészeti és belsőépítészeti tervezésével. Az olyan projektek mindig különlegesek számunkra, ahol mind a két területet mi alakíthatjuk ki, mert lehetőséget adnak arra, hogy már az elejétől fogva mindkét szempontból optimalizáljuk a terveket, ezzel biztosítva, hogy az elemek harmonikusan kapcsolódjanak egymáshoz és a legjobbat hozhassuk ki mindkét területből.

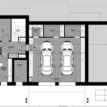
A házat lejtős terepre kellett megtervezni, így az alsó szint az utcával egy szintben épült meg és főként kiszolgáló funkciókat foglal magában, míg a lakószint egy hátsó kertkapcsolattal együtt ezen felül kapott helyet. Az utca szintjén helyezkedik el a garázs, a gépészet, tárolók és egy kisebb barkács műhely is. A lakószint tervezésekor a ház közepén egy kiemelt tömeg, nagyobb belmagassággal lett kialakítva, melyben a nappali és az étkező kapott helyet egybenyíló konyhával. A négy hálószoba és a hozzájuk tartozó fürdőszobák szintén ezen a szinten kapnak helyet, kényelmet és intimitást kínálva a lakóknak.

A megrendelők egy modern, otthonos házat kérték tőlünk, amely alkalmas vendégek fogadására és közösségi események megrendezésére is. Ezért nagy hangsúlyt fektettünk arra, hogy a ház minden része meleg, barátságos légkört árasszon, miközben elegáns és stílusos megjelenést nyújt.

Az anyagok és színek kiválasztásakor figyeltünk arra, hogy harmóniában legyenek a természettel és az építészeti elemekkel. A modern és minőségi anyagokat úgy integráltuk, hogy időtálló, mégis divatos környezetet hozzunk létre.

Ez a projekt nemcsak egy ház tervezése volt, hanem egy olyan otthon megalkotása, amely tükrözi a megrendelők személyiségét, igényeit és életstílusát. A közös munka során kiemelkedő figyelmet fordítottunk az egyes részletekre, hogy létrejöjjön egy olyan élettér, amely nem csak szép, hanem életteli és szerves része lesz a családi életüknek. A végeredmény egy modern és otthonos családi ház, ahol a funkcionalitás és esztétika tökéletes harmóniában találkoznak.

  • Tervező Kokrehel Anna, Bányai Ágnes
  • Tervezés éve 2021
  • Alapterület 313 m2
  • Megrendelő Magánszemély
  • Helyszín Diósd
  • Funkció Családi ház